Villa singola in vendita

Sant'Ambrogio Di Valpolicella, Via Emilio Salgari - Domegliara
€ 690.000
15 locali 15 locali
490 Mq 490 Mq
4 bagni 4 bagni

Villa singola in vendita

Sant'Ambrogio Di Valpolicella, Via Emilio Salgari - Domegliara

Descrizione annuncio

Nel cuore di Sant’Ambrogio di Valpolicella sorge questa affascinante villa singola, un’opportunità rara per chi desidera una residenza di prestigio immersa nella quiete e nel verde.
Progettata nel 1977 dal celebre architetto Libero Cecchini, la villa riflette lo stile dinamico e contemporaneo che contraddistingue le sue opere, con linee armoniche, giochi di volumi e ampie superfici vetrate che dialogano con il paesaggio.

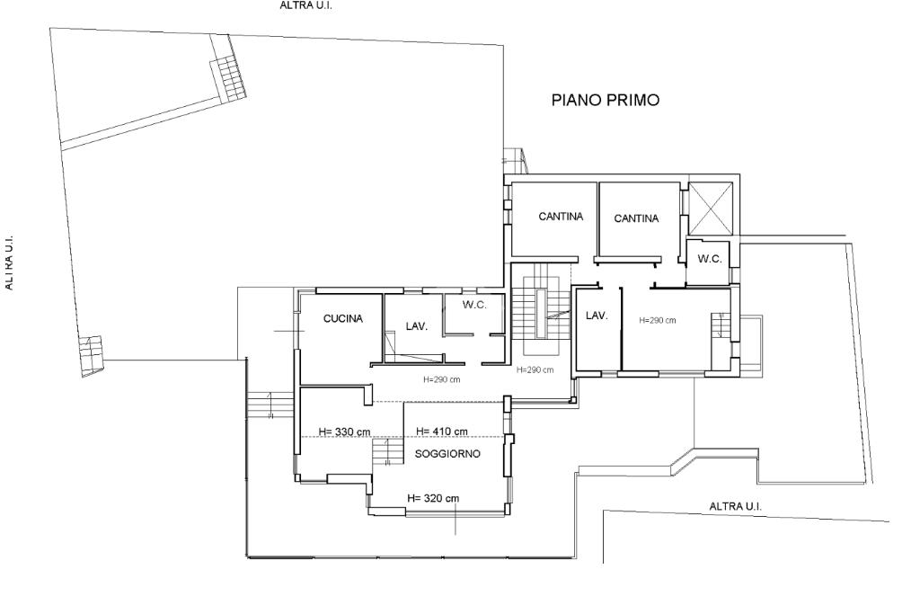
Distribuita su 490 mq e articolata in 15 vani, la proprietà offre ambienti spaziosi, luminosi e pensati per garantire il massimo comfort abitativo e un’elevata privacy.

Un valore aggiunto importante è la zona ospiti, dotata di accesso indipendente anche dal giardino: uno spazio ideale da destinare a mini-appartamento, studio professionale o suite privata per amici e familiari.

All’esterno, un ampio giardino circonda la villa, offrendo la possibilità di realizzare una piscina e creando così un’oasi esclusiva di relax. Il grande terrazzo panoramico regala una vista aperta mozzafiato, perfetta per cene estive, momenti di quiete e aperitivi al tramonto.

Caratteristiche principali

Ampio soggiorno, cucina separata, 4 camere, 4 bagni, 3 lavanderie e locali di servizio
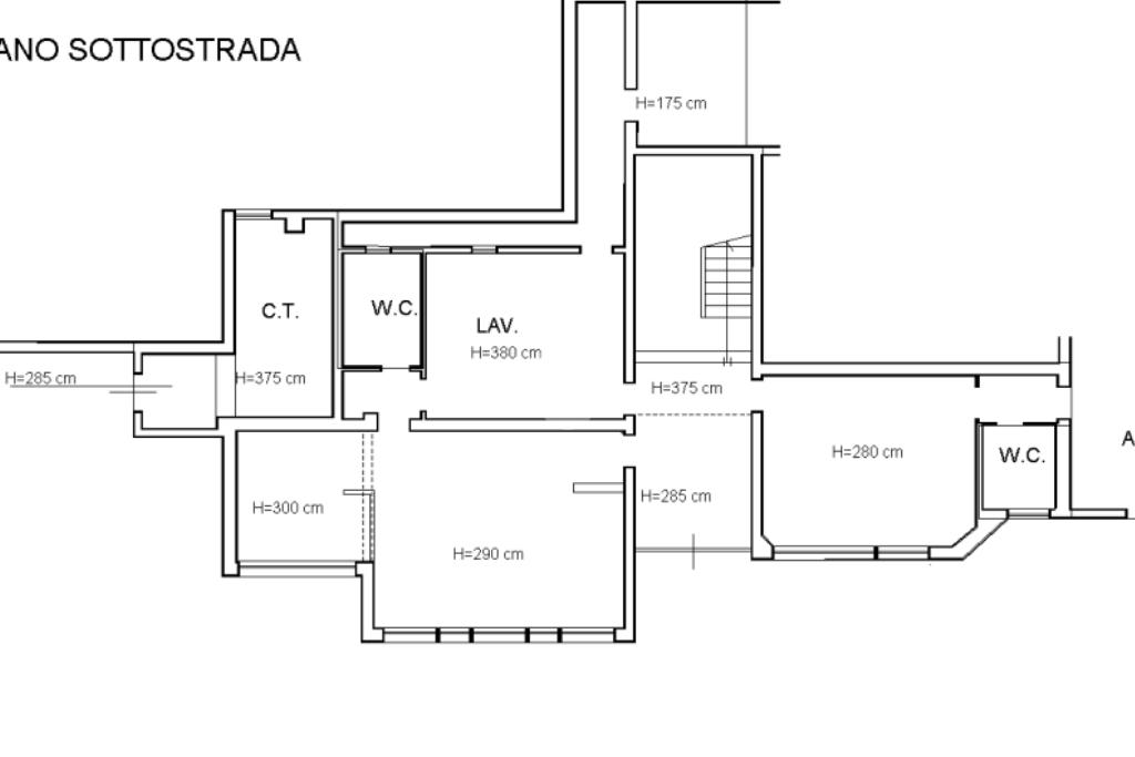
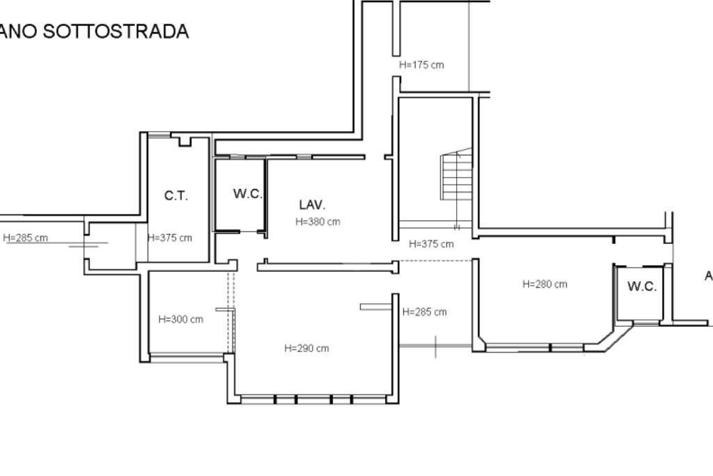
• Zona accessoria con taverna, cantine, studio, bagno e garage
Suite ospiti con accesso interno ed esterno, con locali idonei a soggiorno, camera e bagno
Grande giardino privato, ideale per vivere all’aperto o realizzare una piscina
• Ambienti interni ampissimi, luminosi e ben distribuiti grazie alle importanti superfici vetrate

Questa villa non è semplicemente una casa: è un rifugio esclusivo dove architettura, funzionalità e bellezza naturale si fondono in un’esperienza abitativa senza tempo.

ATTENZIONE: Si avvisa la gentile Clientela che l'indirizzo, per motivi di privacy, potrebbe essere solo indicativo della zona ove è sito l'immobile.

E' bene ricordare, benché sia stata posta la massima cura per garantire la precisione e la correttezza dei contenuti di questa presentazione al momento della pubblicazione, essa non ha alcun valore in sede contrattuale.

Mostra tutto

Nelle vicinanze

Trasporto pubblico Trasporto pubblico
Domegliara - Sant'Ambrogio
Domegliara - Sant'Ambrogio
520 m
Trasporto pubblico
1,2 Km
Scuole Scuole
Scuole
2,1 Km
Farmacia Farmacia
Farmacia Venturini
490 m
Supermercati Supermercati
Martinelli
860 m
Hard Discount LIDL
1,0 Km
Rossetto
1,9 Km
Bar Bar
Bar Pasticceria la Prua
1,7 Km
Bar
1,8 Km
Bar Fortuna
1,9 Km
Osteria Il Ghiottone
2,7 Km
Snack bar
2,8 Km
Ristoranti Ristoranti
Ristoranti
920 m
Ristorante Groto De Corgnan
1,4 Km
Bar Ristorante DA RIGO
1,8 Km
Bar Trattoria Ca´Verde
1,9 Km
Ristorante En Bocon
2,0 Km
Mostra tutto

Caratteristiche

Rif.:
61149078
Piano:
Su più livelli di 2
Totale piani:
2
Box:
1
Posti auto:
2
Terrazzi:
2
Mostra tutto
Prezzo Prezzo
€ 690.000
Rata mutuo Rata mutuo
€ 3.257 / mese
Spese annue Spese annue
€ 0
Proponi il tuo prezzoProponi il tuo prezzo
Immobile valutato con T·Valuta

Classe Energetica

Questo immobile è esente da classe energetica
Anno di costruzione:
1970
Riscaldamento:
Autonomo
Tipo impianto:
A radiatori
Tipo alimentazione:
Gasolio

Ti interessa visionare l'immobile?

Fissa un appuntamento  Fissa un appuntamento

Richiedi informazioni

Clicca su Leggi per aprire l'informativa
* Questi campi sono obbligatori

Calcola il tuo mutuo

Semplice e senza impegno
Anticipo

( % )
Mutuo

( % )

pochi semplici passi

inserisci i tuoi dati
Questionario completato
Grazie per aver richiesto un appuntamento senza impegno con un nostro Consulente del Credito e Assicurativo.

Hai inserito correttamente tutti i dati necessari e a breve riceverai una e-mail con un link da convalidare per inviare i tuoi dati.
Affiliato
Studio Sant'Ambrogio Srl
Via Madonnina, 1 37010 Sant'Ambrogio Di Valpolicella (VR)

Il nostro staff


  • Stefano Zerbini
    Affiliato

  • Alice Bertelli
    Collaboratrice

  • Sara Sandri
    Affiliata
Via Madonnina, 1 37010 Sant'Ambrogio Di Valpolicella (VR)
Zona: Sant'Ambrogio di Valpolicella - Dolce
Mostra su mappa
Orari: lunedì - venerdìmattino 09.00 - 12.30 pomeriggio 15.00 - 19.30 sabato 09.00 - 12.30
Affiliato
Studio Sant'Ambrogio Srl
Via Madonnina, 1 37010 Sant'Ambrogio Di Valpolicella (VR)

2025 Tecnocasa Franchising S.p.A. - P. IVA 08365160152 - Via Monte Bianco 60/A 20089 Rozzano (MI). Ogni agenzia ha un proprio titolare ed è autonoma. Privacy policy | Policy utilizzo | Cookie policy