Casa semindipendente in vendita

Brentino Belluno, Via Adige
€ 220.000
10 locali 10 locali
294 Mq 294 Mq
2 bagni 2 bagni

Casa semindipendente in vendita

Brentino Belluno, Via Adige

Descrizione annuncio

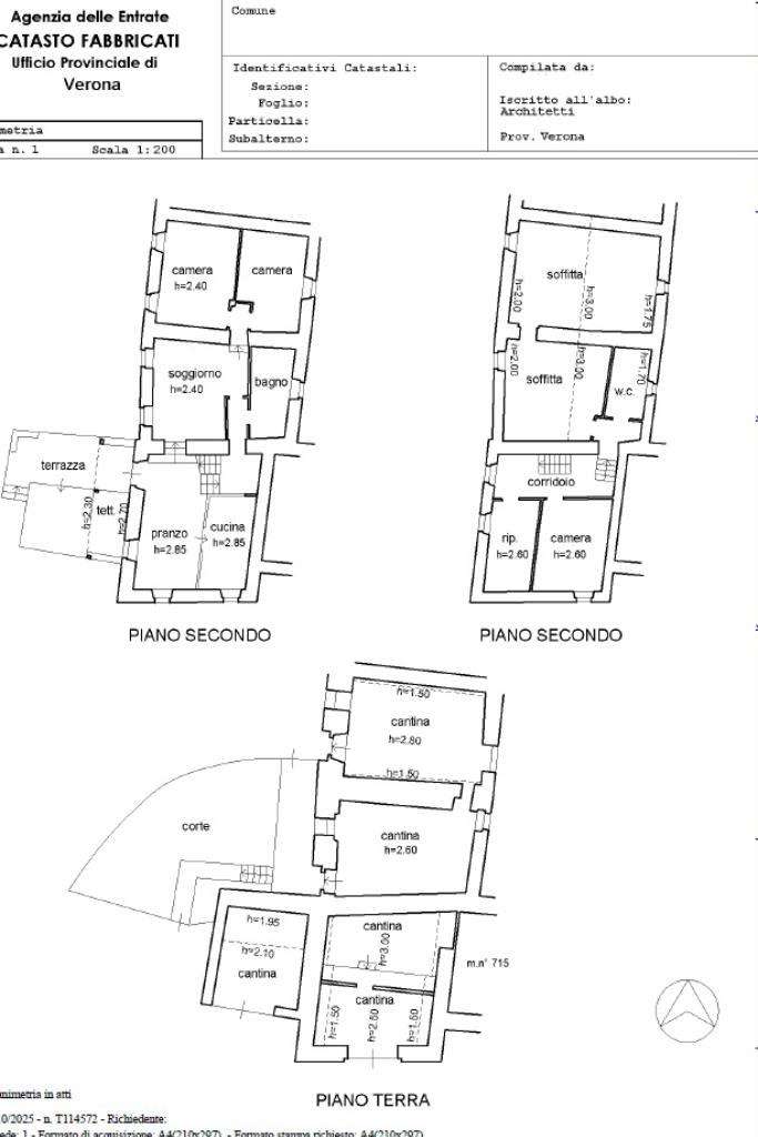
Rustico Semi Indipendente angolare con Ampio Giardino e Vista Aperta – Rivalta di Brentino Belluno

In posizione centrale nella frazione di Rivalta, comoda ai primi servizi e immersa nella tranquillità del verde, proponiamo rustico angolare semi indipendente aperto su due lati, ma con libero affaccio su tre lati, con ampi spazi interni ed esterni.

L’immobile si sviluppa su due livelli abitativi (piano rialzato e primo piano), oltre a locali accessori ai piani seminterrato e interrato, ideali per ricavare cantine, taverna, autorimessa, deposito o altri spazi funzionali secondo le proprie esigenze.

Composizione interna:

Ampio soggiorno

Cucina abitabile con zona pranzo

Tre camere da letto

Due bagni

Ripostiglio

Soffitte mansardate sfruttabili (camere aggiuntive, studio, hobby, ecc.)

Numerosi locali accessori al piano seminterrato/interrato

Esternamente, la proprietà è completata da un terreno privato di circa 1.440 mq catastali, in gran parte piantumato con olivi, ideale per chi cerca spazio verde o desidera coltivare.

Caratteristiche principali:

Indipendenza

Ampia metratura e versatilità degli spazi

Zona tranquilla e ben esposta

Impianto termosanitario a gas metano

Copertura regolarmente manutenuta

Condizioni generali discrete, ma l’immobile necessita di lavori di riammodernamento (impianti e finiture risalgono agli anni ’80)

Ideale per:

Chi cerca una prima casa spaziosa in zona tranquilla

Famiglie che vogliono vivere nel verde

Chi desidera una casa vacanze per i mesi estivi

Un’ottima occasione per chi vuole personalizzare una casa ricca di potenziale, con spazi interni generosi e un grande giardino privato

Mostra tutto

Nelle vicinanze

Trasporto pubblico Trasporto pubblico
Peri
Peri
730 m
Brentino
Brentino
2,1 Km
Trasporto pubblico
3,0 Km
Farmacia Farmacia
Farmacia Valdadige
860 m
Bar Bar
Malù Bar
2,1 Km
Ristoranti Ristoranti
Albergo Belvedere
390 m
Al Castel
1,7 Km
Stella Alpina
3,0 Km
Mostra tutto

Caratteristiche

Rif.:
61125967
Piano:
2 di 2 (Piano su più livelli)
Posti auto:
2
Terrazzi:
1
Camere da letto:
3
Arredamento:
Assente
Mostra tutto
Prezzo Prezzo
€ 220.000
Rata mutuo Rata mutuo
€ 1.014 / mese
Proponi il tuo prezzoProponi il tuo prezzo

Classe Energetica

G
G
G
G
G
G
G
G
G
EP invernale del fabbricato:
EP estiva del fabbricato:
Anno di costruzione:
1800
Riscaldamento:
Autonomo
Tipo impianto:
A radiatori
Tipo alimentazione:
Metano

Ti interessa visionare l'immobile?

Fissa un appuntamento  Fissa un appuntamento

Richiedi informazioni

* Questi campi sono obbligatori

Calcola il tuo mutuo

Semplice e senza impegno
Anticipo

( % )
Mutuo

( % )

pochi semplici passi

inserisci i tuoi dati
Questionario completato
Grazie per aver richiesto un appuntamento senza impegno con un nostro Consulente del Credito e Assicurativo.

Hai inserito correttamente tutti i dati necessari e a breve riceverai una e-mail con un link da convalidare per inviare i tuoi dati.
Affiliato
Studio Sant'Ambrogio Srl
Via Madonnina, 1 37010 Sant'Ambrogio Di Valpolicella (VR)

Il nostro staff


  • Stefano Zerbini
    Affiliato

  • Alice Bertelli
    Collaboratrice

  • Sara Sandri
    Affiliata
Via Madonnina, 1 37010 Sant'Ambrogio Di Valpolicella (VR)
Zona: Sant'Ambrogio di Valpolicella - Dolce
Mostra su mappa
Orari: lunedì - venerdìmattino 09.00 - 12.30 pomeriggio 15.00 - 19.30 sabato 09.00 - 12.30
Affiliato
Studio Sant'Ambrogio Srl
Via Madonnina, 1 37010 Sant'Ambrogio Di Valpolicella (VR)

2025 Tecnocasa Franchising S.p.A. - P. IVA 08365160152 - Via Monte Bianco 60/A 20089 Rozzano (MI). Ogni agenzia ha un proprio titolare ed è autonoma. Privacy policy | Policy utilizzo | Cookie policy